Quadrilocale in vendita

Cermenate, Via Luigi Pirandello
€ 320.000
4 locali 4 locali
105 Mq 105 Mq
2 bagni 2 bagni

Quadrilocale in vendita

Cermenate, Via Luigi Pirandello

Descrizione annuncio

Cermenate: Nuova costruzione con consegne entro seconda metà 2027.

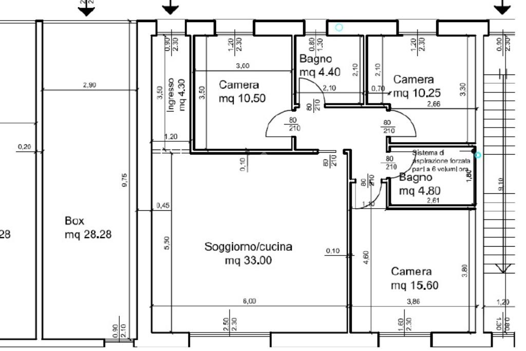
Unità 1 - Appartamento di quattro locali al piano terra con giardino, doppi servizi, ingresso indipendente e box doppio in lunghezza.

Lotto di terreno posizionato in area prossima al centro cittadino, comoda a tutti i principali servizi ed immersa nel verde del parco del Lura. In tale lotto, di oltre 3.500 mq complessivi, verrà edificato un piccolo complesso residenziale, composto da sole 9 unità abitative distribuite su tre diverse tipologie di edifici.

L'appartamento è collocato nella palazzina 1, la quale si compone di sole 4 unità residenziali, di cui due al piano terra con giardino di circa 150 mq. e due al piano primo con ampio terrazzo da 50 mq.

L'ingresso, completamente indipendente, offre accesso all'area soggiorno con cucina a vista ed è collegato al giardino da un'ampia e luminosa porta finestra.

Un pratico disimpegno separa la zona notte, dove sono ubicate tre camere da letto, di cui una matrimoniale, oltre a due locali servizi.

Il costruttore offre elevati standard qualitativi, finiture curate e di pregio oltre ad un capitolato completo di numerosi accessori, quali il video-citofono, cassaforte, serrande elettriche e molto altro.

Il complesso sarà costituito da unità completamente indipendenti, tutte dotate di riscaldamento a pavimento, impianto fotovoltaico ed edificato in stile moderno e con materiali di ultima generazione.

Ti aspettiamo in agenzia per ogni ulteriore informazione e, se devi vendere il tuo immobile, ci occuperemo di gestire ogni aspetto organizzativo, dalla valutazione sino alla gestione delle tempistiche necessarie per compiere entrambe le operazioni, con competenza ed ottimizzazione dei costi di mediazione.

La nostra Agenzia immobiliare, Tecnocasa di Cermenate, si occupa di immobili in vendita ed in affitto nelle aree dei comuni di Cermenate, Carimate, Figino Serenza, Novedrate, Vertemate con Minoprio e Comuni limitrofi.

Per conoscere il valore della Tua casa, richiedici subito una valutazione gratuita e senza impegno!

Seguici su Facebook e Instagram per vedere tutte le anteprime dei nostri nuovi annunci!

Si specifica che tutte le informazioni contenute nel presente annuncio, seppur rispondenti ai criteri di correttezza, non ingannevolezza e trasparenza, hanno carattere meramente informativo e/o divulgativo e non costituiscono vincolo contrattuale.

Mostra tutto

Nelle vicinanze

Trasporto pubblico Trasporto pubblico
Carimate
Carimate
2,5 Km
Via Matteotti - Via Da Cermenate (Cermenate)
Via Matteotti - Via Da Cermenate (Cermenate)
840 m
Strada dei Giovi - Via Matteotti (Cermenate)
Strada dei Giovi - Via Matteotti (Cermenate)
1,0 Km
stazione di Cantù-Cermenate
stazione di Cantù-Cermenate
1,7 Km
Ricariche auto elettriche Ricariche auto elettriche
Gorla Pneumatici
1,8 Km
Stazione di Carimate | EnelX
2,6 Km
Carimate Poste | EnelX
2,7 Km
Scuole Scuole
Scuole
450 m
Scuola Secondaria di Primo Grado
950 m
Scuola Asnago
1,2 Km
Scuola Elementare Montessori
1,4 Km
Mensa Scolastica
1,4 Km
Farmacia Farmacia
Farmacia Melli Petazzi
1,1 Km
Farmacia Comunale
1,1 Km
Farmacia Gerli Tomaso
2,0 Km
Farmacia
2,3 Km
Farmacia di Bulgorello
2,7 Km
Supermercati Supermercati
Ld-Discount
740 m
Il Gigante
750 m
Acqua & Sapone
830 m
Surgelati Picard
1,1 Km
Supermercato SMA
1,1 Km
Negozi Negozi
Negozi
1,1 Km
Armani Outlet
1,7 Km
Max Moda
1,8 Km
Minimarket SISA
1,9 Km
Rivendita aziendale ISA
2,6 Km
Bar Bar
Bar della pianta
330 m
La fragola
390 m
Biker's Bar
1,0 Km
Bar Bianchi
1,1 Km
Benny's bar
1,3 Km
Ristoranti Ristoranti
Antica osteria di Montesordo
510 m
Trattoria "al murett"
600 m
Vanìta Cafè
720 m
Ristorante Sushi Xian Wok
810 m
Pizzeria Peter Pan
860 m
Mostra tutto

Caratteristiche

Rif.:
61137249
Piano:
1 di 1 (Piano terra)
Box:
1
Camere da letto:
3
Arredamento:
Assente
Condizionamento:
Predisposizione impianto
Mostra tutto
Prezzo Prezzo
€ 320.000
Rata mutuo Rata mutuo
€ 1.520 / mese
Spese annue Spese annue
€ 0
Proponi il tuo prezzoProponi il tuo prezzo

Classe Energetica

Questo immobile è esente da classe energetica
Anno di costruzione:
2026
Riscaldamento:
Autonomo
Tipo impianto:
A pavimento
Tipo alimentazione:
Pannelli

Ti interessa visionare l'immobile?

Fissa un appuntamento  Fissa un appuntamento

Richiedi informazioni

Clicca su Leggi per aprire l'informativa
* Questi campi sono obbligatori

Calcola il tuo mutuo

Semplice e senza impegno
Anticipo

( % )
Mutuo

( % )

pochi semplici passi

inserisci i tuoi dati
Questionario completato
Grazie per aver richiesto un appuntamento senza impegno con un nostro Consulente del Credito e Assicurativo.

Hai inserito correttamente tutti i dati necessari e a breve riceverai una e-mail con un link da convalidare per inviare i tuoi dati.
Affiliato
Vigano' Immobiliare Srl
Via A.Ronzoni, 8 22072 Cermenate (CO)
Via A.Ronzoni, 8 22072 Cermenate (CO)
Zona: Carimate-Cermenate-Figino Serenza-Novedrate-Vertemate
Mostra su mappa
Orari: da Lunedì a Venerdì 09:30–13:00 / 15:00–19:00 Sabato 09:30–12:30 Domenica Chiuso
Affiliato
Vigano' Immobiliare Srl
Via A.Ronzoni, 8 22072 Cermenate (CO)

2026 Tecnocasa Franchising S.p.A. - P. IVA 08365160152 - Via Monte Bianco 60/A 20089 Rozzano (MI). Ogni agenzia ha un proprio titolare ed è autonoma. Privacy policy | Policy utilizzo | Cookie policy